Kopfzeile

Hardtmuthgasse/Leebgasse: Gepflegte Balkonwohnung - Wohnküche - 3. Liftstock - Gute Infrastruktur

Wohnung zur Miete in Wien (1100) / Objektnummer: 12149

Wohnung zur Miete in Wien (1100) 890,14 €

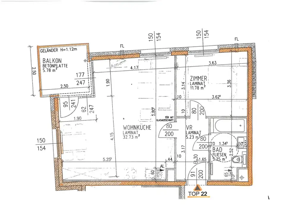
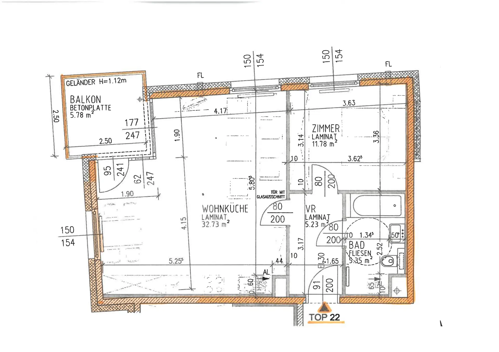
2 Zimmer

1 Badezimmer

55 m² Wohnfläche

6 m² Außenfläche

Balkon

Diese räumlich gut angelegte Balkon-Eckwohnung befindet sich im 3. Liftstock eines Neubaus und wird auf 5 Jahre befristet vermietet. Die freundliche Wohnung versprüht einen richtig gemütlichen "Wohlfühlflair". Große Isolierglasfenster und Parkettböden verleihen der Wohnung zusätzlich ein behagliches Wohnklima. Die Wohnküche bildet den zentralen Ort der "Geselligkeit".

Das Badezimmer ist klassisch verfliest, verfügt über Badewanne, Waschmaschinenanschluss und WC. Die Warmwasser- und Heizungsaufbereitung wird über die Fernwärme Wien geregelt, der Verbrauch ist daher direkt mit dem Energielieferanten zu verrechnen. 

Die Laxenburger- und die Troststraße bieten eine gute Einkaufsinfrastruktur, Apotheke, Kindergärten und Ärzte runden das Angebot ab. Das Erholungsgebiet Wienerberg sowie die Sportplätze um die Anker-Arena bieten beste Möglichkeiten für Natur- und Sportbegeisterte oder auch nur eine ausgedehnte Hunderunde.

Öffentliche Verkehrsanbindung:

  • Autobuslinie: 7A, 65A, 66A
  • Straßenbahnlinie: 11,O

Rund um den Laaerberg gibt es diverse Aktivitäten, darunter das Bad selbst mit zahlreichen Schwimm- und Sportangeboten. Im Sommer ein beliebter Treffpunkt.  Das Erholungsgebiet Wienerberg bietet eine Oase in der Stadt

Der Immobilienmakler erklärt, dass er – entgegen dem in der Immobilienwirtschaft üblichen Geschäftsgebrauch des Doppelmaklers – einseitig nur für den Vermieter tätig ist.

Grundriss

Lageplan

Inhalt wird geladen

Weitere Informationen

Virtuelle Besichtigung starten

Dokumente

Preise
Gesamtmiete
890,14 €
Nettomiete
680,00 €
Betriebskosten netto
129,22 €
Betriebskosten brutto
142,14 €
Betriebskosten brutto
129,22 €
Gesamtmiete USt.
80,92 €
Kaution
3.000,00 €
Provision
Gemäß Erstauftraggeberprinzip bezahlt der Abgeber die Provision.
Fakten
Objekttyp
Wohnung
Wohnfläche
55 m²
Balkonfläche
6 m²
Balkone
1
Stockwerk
3. Etage
Gebäude
Neubau
Zustand
gepflegt
Status
verfügbar
Energieeffizienz
Energieausweisart
Energiebedarfsausweis
HWB
33,70 kWh/(m²a)
FGEE
0,84
Gültig bis
16.01.2034
Angelika ERTLER