Kopfzeile

neu — Gerlgasse: Hübsche Kleinwohnung, die um eine Loggia und einen Gartenfläche erweitert wird

Wohnung zur Miete in 1030 Wien / Objektnummer: 12137

Wohnung zur Miete in 1030 Wien 981,03 €

1.5 Zimmer

1 Badezimmer

46 m² Wohnfläche

4 m² Außenfläche

BadezimmerToilettenLoggia

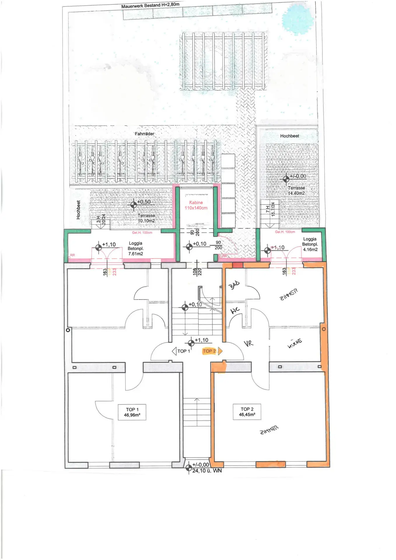
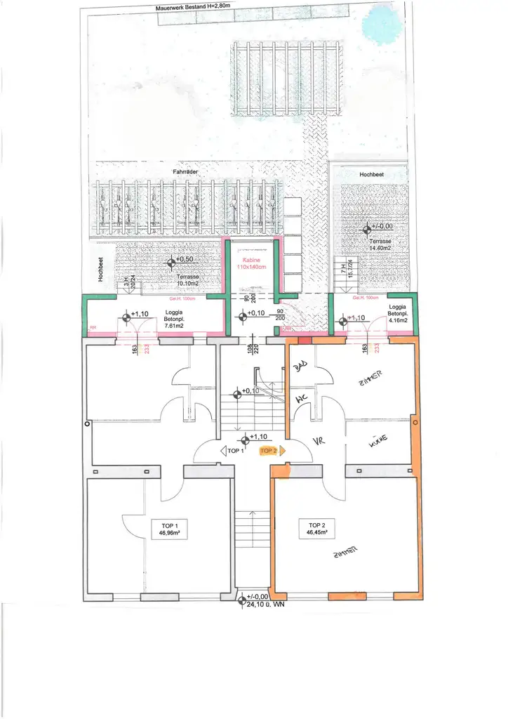
Aktuell wird die Wohnung frisch ausgemalt, daher steht nur ein Grundriss zur Verfügung
 

Mitten im Dritten und zwischen zwei beliebten Naherholungsgebieten, dem Schweizergarten und dem Botanischen Garten, gelangt diese kompakte Wohnung zur unbefristeten Vermietung. Erholungssuchende und Sportbegeisterte finden hier gute Voraussetzungen für einen Spaziergang in die nahegelegenen Parks oder aber auch die Möglichkeit ein gutes Buch zu lesen. 

Die Wohnung in der Gerlgasse wird in den nächsten 1-3 Jahren um eine Loggia (4,16 m²) und eine Gartenfläche (14,40 m") erweitert werden. Im Grundriss ist die Erweiterung bereits eingezeichnet. Der Umbau startet, sobald die MA 37 die Genehmigung erteilt hat. Sobald die Loggia und die Gartenfläche errichtet sind, erhöht sich der Mietzins von aktuell netto € 789,65 auf netto € 941,97. Eine Küchenzeile, ein Duschbad und ein separates WC umrahmen dieses Kleinod.

Die Wohnung wird mittels einer Gas-Etagenheizung beheizt. Die Räume sind mit Parkettboden ausgelegt und die Nassräume verfliest. Kunststoff-Isolierglasfenster sorgen für Behaglichkeit und wohlverdiente Ruhe .

Die Geschäfte des täglichen Bedarfs sind fußläufig erreichbar. Die Wohnung ist an das öffentliche Verkehrsnetz sehr gut angebunden. Mit ein wenig "Entdeckergeist" verstecken sich im Fasanviertel Orte der Kulinarik, Natur und Kunst, die absolut einen Besuch wert sind.

Öffentliche Anbindung:
Straßenbahnlinie 1, O, 71
Buslinie 77A

Der Immobilienmakler erklärt, dass er – entgegen dem in der Immobilienwirtschaft üblichen Geschäftsgebrauch des Doppelmaklers – einseitig nur für den Vermieter tätig ist.

Lageplan

Inhalt wird geladen

Grundriss

Dokumente

Preise
Gesamtmiete
981,03 €
Nettomiete
789,65 €
Betriebskosten netto
102,19 €
Betriebskosten brutto
112,41 €
Betriebskosten brutto
102,19 €
Gesamtmiete USt.
89,19 €
Kaution
3.000,00 €
Kaution, Details
3.000,00 €
Provision
Gemäß Erstauftraggeberprinzip bezahlt der Abgeber die Provision.
Fakten
Objekttyp
Wohnung
Wohnfläche
46 m²
Loggiafläche
4 m²
Toiletten
1
Loggias
1
Baujahr
1952
Letzte Sanierung
2025
Gebäude
Neubau
Zustand
gepflegt
Status
verfügbar
Energieeffizienz
Energieausweisart
Energiebedarfsausweis
HWB
142,90 kWh/(m²a)
FGEE
1,82
Gültig bis
07.04.2034
Angelika ERTLER